490 mp teren!4camere!2 băi!Încălz în pard!Casa 4 camere Dancu-Holboca - 150000 €

Descriere

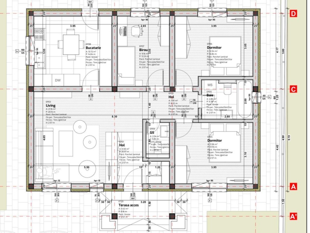
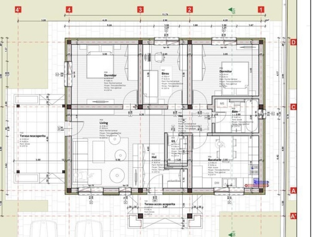
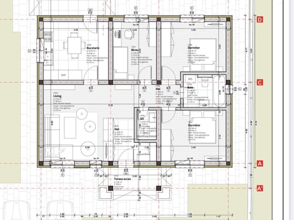
Va propunem spre vanzare o casa cu 4 camere, in Dancu-Holboca, racordata la toate utilitatile, cu o fundatie din beton si zidarie din caramida, avand o suprafata utila de 86 mp si teren aferent constructiei 490 mp, compartimentata astfel:

Parter: living, bucătărie, 3 dormitoare, 2 băi, hol, posibilitate de terasa

Mansardă: spațiu de depozitare

 

Casa se preda 'la cheie', cu toate dotarile si finisajele incluse:

-centrala termica pe gaz

-gresie, faianta, parchet, usi

-tamplarie PVC cu geam termopan

-termosistem 10 cm

-bai echipate complet

-incalzire in pardoseala

 

Alte facilitati:

-cablu TV

-fibra optica

-internet

-telefonie

-clasa energetica B

 

Se accepta atat plata cash, cat si prin credit ipotecar.


Caracteristici

  • Camere: 4
  • Suprafața utilă: 86m2
  • Suprafața teren: 490m2

Specificații